Etablissement recevant du public, architectes Schom-Zerbib
Transformation d'un hôtel par création de terrasse accessible
Saint Mandrier sur Mer
Année 2020-2025
Conception de bureaux Le Beausset
Surface de plancher aménagée : 1000m²
Année : 2017
Conception et réalisation d’une salle de kinésithérapie dans un ERP Le Beausset
Surface de plancher réaménagée : 115m²
Année : 2017
Conception de l’aménagement d’un parc animalier Sanary sur Mer.
Surface du parc : 12 332m². Aménagements et chemins : 2 000m²
Bureaux : 165m². Bâtiments recevant du public : 605m²
Année : 2016
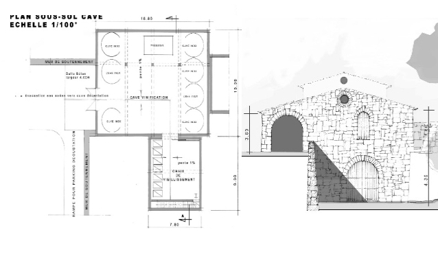
Conception d’un domaine viticole Le Beausset
Surface de plancher : 150m² habitable hors vinification et entrepôts
Année : 2016
Votre choix
Ce site utilise des cookies et vous donne le contrôle sur ceux que vous souhaitez activer. Vous avez le choix de les accepter ou de les refuser pour naviguer sur notre site internet.
Panneau des cookies
L'acception des cookies permettra la lecture et l'analyse des informations ainsi que le bon fonctionnement des technologies associées.
Facebook Connect Cookie Tiers. Ce cookie permet de collecter des informations relatives à la navigation et de se connecter via Facebook
Google Analytics Cookie de mesure d'audience. Ce cookie nous permet d'établir des statistiques de visite du site
BETB, BETB_ID, PHPSESSID Cookies obligatoires. Ces cookies sont nécessaires pour permettre le bon fonctionnement du site, ils sont automatiquement activés lorsque vous utilisez ce site